Feuillard perforé - Inox A2
Les feuillards perforés FPIX apportent une réponse aux problèmes liés à l‘antiflambement des charpentes. Ils sont particulièrement adaptés à la fermette. Ils permettent aussi de répondre à de nombreuses mises en œuvre, et ce, dans des ambiances agressives.
- Référence
- Epaisseur1.5mm
- ConditionnementRouleau de 25m
- FabricationFrançaise
- MatériauAcier inoxydable A2 suivant NF EN 10088
- MarqueSIMPSON Strong-Tie
- Trous de perçagetaille : Ø5 ; taille : Ø8
- Section minimale [mm²]30mm²
- Longueur25m
Caractéristiques
- Déclaration de performance (DOP) : fr-dop-h10-0001.pdf
Matière
- Acier inoxydable A2 suivant NF EN 10088,
- Épaisseur : 1 à 2 mm selon les modèles.
Avantages
- Souplesse de mise en œuvre,
- Utilisable en atmosphère agressive.
Applications
Support
- Porteur : bois massif, bois composite, bois lamellé-collé, acier, béton,
- Porté : bois massif, bois composite, bois lamellé-collé, profil acier ou PVC.
Domaines d’utilisation
- Antiflambement des charpentes et bardage bois,
- Fixation de gaines,
- Réalisation d‘assemblages divers,
- Reprise de charge au soulèvement.
Données techniques
Dimensions
| Références | Dimensions | Perçages | Section minimale [mm²] | |||
|---|---|---|---|---|---|---|
| A [mm] | B [m] | t [mm] | Taille | Taille | ||
| FPIX20/0.8/10 | 20 | 10 | 0.8 | Ø5 | Ø7 | 8 |
| FPIX30/1,5/25 | 30 | 25 | 1.5 | Ø5 | Ø8 | 30 |
| FPIX40/2/25 | 40 | 25 | 2 | Ø5 | Ø8 | 60 |
Performances du produit
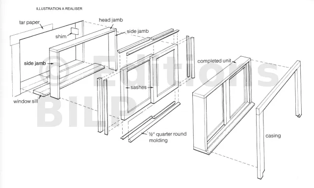
Après avoir créer ou réserver une ouverture pour notre nouvelle fenêtre (voir article précédent). Pour les fenêtres à guillotine, il suffit d’installer un papier feutre (papier goudronné).Utilisez du papier goudronné pour réduire l’infiltration d’air. Nous voyons ici le papier goudronné partiellement installé.
Les cales assurent que la fenêtre à installer soit bien en équerre et à niveau.
Le papier feutre est installé dans une bande d’environ 30 cm de large autour de l’ouverture brute de la fenêtre et sur le revêtement.Bien s’assurer que les morceaux des papiers feutre supérieur et inférieur se chevauchent.
Remodeler les fenêtres si nécessaire pour qu’elles puissent entrer convenablement dans l’ouverture.
Il est préférable d’essayer de trouver un ensemble de fenêtres semblables à partir d’un seul bâtiment pour assurer une certaine harmonie. Si le cadre est pourri ou fissuré, vous pouvez toujours récupérer les ceintures ou reconstruire la trame et les pistes ou installer les ceintures pour servir d’unités fixes. Une fenêtre coulissante horizontale est la plus exploitable.
Cette étape consiste à construire et à installer un cadre de fenêtre qui est adapté à votre ouverture brute. Le cadre doit aussi avoir les dimensions appropriées pour maintenir les ceintures.
| Références | Valeurs Caractéristiques - Bois C24 [kN] | ||||
|---|---|---|---|---|---|
| R1,k* | |||||
| Valeur maximum | CNA4,0X35 | CNA4,0X40 | CNA4,0X50 | CNA4,0X60 | |
| FPIX20/0.8/10 | 3,9 / kmod | 1,66 x n | 1,83 x n | 2,22 x n | 2,36 x n |
| FPIX30/1,5/25 | 12,3 / kmod | 1,66 x n | 1,83 x n | 2,22 x n | 2,36 x n |
| FPIX40/2/25 | 21,8 / kmod | 1,66 x n | 1,83 x n | 2,22 x n | 2,36 x n |
* R1,k est calculée à partir des capacités des pointes et ne doit pas excéder la valeur maximale.
n = nombre effectif de pointes sur une ligne suivant l’Eurocode 5 8.3.1.1 (8)
SIMPSON Strong-Tie
Une fiabilité et un service sans équivalent
Depuis son implantation en Europe en 1994, la société Simpson Strong-Tie est devenue une valeur sûre en matière de connecteurs grâce à un savoir-faire reconnu et une qualité de produits testés. Forte de ses années d’expériences, elle fait de la sécurité, de la fiabilité et du respect des règlementations en vigueur un engagement permanent.
Fixations
Sur bois :
- Pointes annelées CNAS Ø4.0,
Sur béton :
- Chevilles mécaniques à expansion inox,
- Chevilles chimiques inox.
Sur acier :
- Boulons inox,
- Rivets inox,
- Boulons HR inox.
Installation
Utilisation d’un tendeur de feuillards BANSTR :
- Pointer le feuillard sur un des éléments bois.
- Tendre le feuillard sur l’élément suivant grâce à l’outil BANSTR.
- Pointer le feuillard sur cet élément bois.
- Répéter l’opération jusqu’à atteindre le dernier élément et pointer.
Utilisation d’un tendeur de feuillards FMBS :
- Pointer une 1ère section de feuillard sur un des éléments bois.
- Pointer une 2nde section de feuillard sur un second élément bois.
- Fixer l’autre extrémité de ces deux feuillards au tendeur FMBS afin de les associer au centre de la diagonale.
- Régler le pas de vis afin de serrer l’ensemble.










