
Conception des plans
Mon cahier des charges :
- Je dois stocker le matériel de Jardinage, tondeuses, outils à main, etc. à côté du potager.
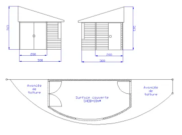
- J’ai aussi besoin de stocker des matériaux de bricolage, des outils, les vélos, etc. il faudra également ranger un micro-tracteur et travailler dans l’abri confortablement. Il me faut donc une cabane de jardin de bonne dimension.
- La cabane sera bâtie dans une pente. si j’avais absolument voulu éviter des travaux de terrassement, j’aurai pu réaliser un plancher en bois posé sur des pilotis ou plots béton. Mais les travaux de jardinage réalisés en intérieur sont salissants en général ; il faudra passer le nettoyeur haute-pression de temps en temps. Et le poids du tracteur, plus de 500 kg, nécessiterait une structure bois très imposante. J’ai donc pris le parti de creuser en intégrant la construction dans la pente.
- Les matériaux utilisés seront ceux de l’habitation principale : tuiles et bois. Cependant, le soubassement sera en maçonnerie sur une hauteur de un mètre environ car une partie de l’abri est enterrée pour être de niveau.
J’ai réalisé les plans sur AUTOCAD. C’est un logiciel professionnel, très lourd et complexe, qui demande un long apprentissage. Si c’était à refaire, j’utiliserais SKETCHUP. Voir mes conseils ici : Mes 10 conseils pour utiliser SKETCHUP
Il faut demander la permission au Monsieur
13 Septembre 2006 : la déclaration de travaux est à la Mairie
Un Abri de Jardin dont la surface est inférieure à 20m² ne requière pas de permis de construire mais il faut soumettre une déclaration de travaux au service urbanisme de votre commune.
Quelle est la différence entre un PC et une DC ?
A vrai dire, pas grand chose : l’administration est tout aussi exigeante, les pièces à fournir sont quasiment identiques, tu payes aussi la TLE (Taxe Locale d’Équipement) et on peut te refuser ton projet. Je pense que la distinction entre "déclaration" et "permis" n’est qu’une hypocrisie : on fait croire à l’usager qu’il ne s’agit que d’une simple formalité ; en réalité on est tout aussi emm...
Il faut attendre l’accord pendant un mois (il s’agit donc bien d’une demande d’autorisation), au delà de ce délai, le projet est implicitement "accepté". Enfin ça c’est la théorie, si vous recevez un refus ultérieurement, vous serez bon pour tout démolir à vos frais évidemment.
6 Novembre 2006 : on recommence
J’ai reçu une réponse de la DDE tout juste 31 jours après le dépôt de la demande. Et pour me dire quoi ? qu’il manquait des informations à ma demande (des détails insignifiants) et que le délai d’un mois était reconduit à partir de la fourniture des informations complémentaires. Ce premier refus, correspondant à un premier check du dossier, n’aurait-il pas pû être fait dés la réception du dossier par la DDE ? On va me répondre : « oui, mais ils sont en sous-effectif, tout ça... ». OK mais ils ont quand même attendu le dernier moment. A un mois près, on ne va pas me dire que c’est un problème d’effectif. C’est un problème d’organisation du travail et de volonté de rendre un service public avec efficacité.
25 Novembre 2006 : enfin je l’ai !
Au final je l’ai eu cette autorisation, au bout de 2,5 mois. Remercions les services administratifs de nous donner l’occasion de sabrer le champagne.
Alors passons aux choses concrètes maintenant.
La Construction démarre
Weekend du 9 Décembre 2006 : le terrassement (1ère partie)
Je sais déjà que je vais le regretter mais je n’ai pas louer de pelleteuse pour faire le boulot de terrassement. Le coût total de la journée de location ajouté au transport me semblait trop cher. Je suis un radin et je le paierai en litres de sueur. Est-ce du masochisme ou apprécie-je les travaux de plein-air ?
Voilà, il faut s’y mettre maintenant. On crache dans la paume des deux mains, on attrape la bêche et la brouette, on débranche le cerveau et on fonce comme un brutos.
Heureusement, la terre en hiver a une consistance idéale. La bêche pénètre sans difficulté. Par contre, la brouette s’embourbe très rapidement, surtout en début de journée. Dans l’après-midi, le rayonnement solaire assèche un peu la surface. J’ai déposé à terre des cartons entre la zone de travail et le déchargement. Cela me fait un chemin au sec.
C’est la fin d’un Weekend de labeur. La nuit tombe vite. Horreur, je n’ait fait que la moitié après 12 heures de travail de forçat. J’ai quelques belles ampoules, un début de tendinite au coude gauche, une botte percée et le pied droit douloureux (celui qui appuie sur la bêche).
Ça y est, je regrette la pelleteuse, comme prévu.
Weekend du 17 Décembre 2006 : Fin du terrassement
C’est un beau WE, surtout le Samedi. Je suis en tee-shirt et j’ai envie de l’enlever. Il me faut quelques heures de travail et enfin c’est terminé.
Finalement, cela n’a pas été aussi terrible que ça !

















