Eléments constitutifsNomenclature des matériaux

Bruno

A partir des dimensions générales, cette page liste les éléments constituants votre cabane ainsi que leur dimension.

Voici un extrait gratuit du guide de construction :

Composition globale de la structure

Murs FACE et LATERAL
Murs FACE et LATERAL
Murs LATERAL et DERRIERE
Murs LATERAL et DERRIERE

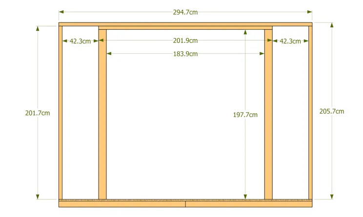
Nomenclature du mur de FACE

Ossatures mur de FACE
Ossatures mur de FACE

Dimensions ossatures mur FACE
Dimensions ossatures mur FACE
Id. Désignation Section Longueur Qté
M1aLisse haute6x4 cm294.7 cm1
M1bCadre porte haute6x4 cm201.9 cm1
M1cCadre porte latéral9x9 cm197.7 cm2
M1dMontant6x4 cm201.7 cm2
-Bardage--0.75 m²

Nomenclature des murs LATÉRAUX

Ossatures murs LATERAUX
Ossatures murs LATERAUX

Dimensions ossatures murs LATERAUX
Dimensions ossatures murs LATERAUX
Id. Désignation Section Longueur Qté
M2aMontant6x4 cm27.3 cm10
-Bardage--2 x 0.92 m²

Nomenclature du mur DERRIÈRE

Ossatures mur de DERRIERE
Ossatures mur de DERRIERE
Dimensions ossatures mur DERRIERE
Id. Désignation Section Longueur Qté
M4aLisses haute6x4 cm294.7 cm1
M4bMontant6x4 cm211.5 cm7

Nomenclature de la toiture : chevrons et liteaux

Vue chevron 1
Vue chevron 1
Vue chevron 2
Vue chevron 2
Dimensions chevrons 1
Dimensions chevron 2
Id. Désignation Section Longueur Qté
Ch1Chevron6x4 cm60.3 cm7
Ch2Liteau4x2.7 cm294.7 cm1
Ch3Liteau4x2.7 cm300 cm1

Nomenclature de la toiture : closoirs

Vue closoirs
Vue closoirs
Dimensions closoirs
Dimensions closoirs
Id. Désignation Section Longueur Qté
CL1Closoir6x4 cm44.4 cm6

Nomenclature du bardage

Bardage vue 1
Bardage vue 1
Bardage vue 2
Bardage vue 2



Id. Désignation Section Longueur Qté
PB1Planche de bardage20x2.7 cm234.8 cm2
PB2Planche de bardage20x2.7 cm229 cm2
PB3Planche de bardage20x2.7 cm197.7 cm4
PB4Planche de bardage9.1x2.7 cm197.7 cm2
PB5Planche de bardage9x2.7 cm300 cm1
PB6Planche de bardage5.6x2.7 cm300 cm1
PB7Planche de bardage10.2x2.7 cm300 cm1

Nomenclature de la couverture en plaque polyester

Revêtement en plaque polyester
Id. Désignation Dimension Longueur Qté
CPlaque de polyester ECO mirco onde2 (200x90 cm)2.16 m²2

Nomenclature de la porte

Vue porte
Dimensions porte
Id. Désignation Section Longueur Qté
P1Planche de porte18.39x2.7 cm197.7 cm10
P2Baguette pour porte7x2.7 cm91 cm4
P3Baguette pour porte7x2.7 cm164.4 cm2


[...]

...Il y a une suite !
Pour lire la suite de l'article, devenez Membre PREMIUM
  • Ainsi vous découvrirez :
  • Composition globale de la structure
  • Nomenclature du mur de FACE
  • Nomenclature des murs LATÉRAUX
  • Nomenclature du mur DERRIÈRE
  • Nomenclature de la toiture: chevrons et liteaux
  • Nomenclature de la toiture: closoirs
  • Nomenclature du bardage
  • Nomenclature de la couverture en plaque polyester
  • Nomenclature de la porte
  • Et de nombreuses illustrations haute-définition :
  • Dimensions ossatures murs LATERAUX
  • Dimensions ossatures mur DERRIERE
  • Revêtement en plaque polyester
  • Bardage vue 2
  • Bardage vue 1
  • Dimensions porte
  • Vue closoirs
  • Dimensions chevrons 1
  • Vue chevron 1
  • Ossatures mur de DERRIERE
  • Ossatures murs LATERAUX
  • Dimensions ossatures mur FACE
  • Ossatures mur de FACE
  • Vue porte
  • Murs LATERAL et DERRIERE
  • Murs FACE et LATERAL
  • Vue chevron 2
  • Dimensions chevron 2
  • Dimensions closoirs


  • mais aussi le téléchargement du guide de construction COMPLET au format PDF, les vidéos de formations exclusives, les outils de calculs, les composants SKETCHUP, etc. etc.

    Pour devenir Membre, il suffit d’acquérir un de nos packs en fonction du type de projet que vous souhaitez réaliser :

Le guide CABANE & ABRIS DE JARDIN - Edition 2026

Je télécharge mon modèle N°8C

Parcourez toutes les rubriques de ce modèle, voyez les avantages de chaque modèle par rapport à votre demande. Puis téléchargez votre PDF qui prendra en compte vos paramètres personnels. Vous pouvez ensuite l’imprimer.